『信州/諏訪 霧ケ峰高原 別荘地 ビバルデの丘』
スタッフブログへお立ち寄りいただきまして
ありがとうございます。中川屋です。
令和 8年 4月 26日(日)
ビバルデの丘
今朝 8:15 気温 9.5℃
お昼 12:00 気温 16.1℃
天候 晴
『令和3年7月に静岡県熱海市で発生した土石流災害を踏まえ、盛土等に伴う災害から国民の生命・財産の保護を目的として、従来の「宅地造成等規制法」が法律名・目的も含めて抜本的に改正され、宅地、森林、農地等の土地の用途にかかわらず、危険な盛土等を全国一律の基準で包括的に規制する「宅地造成及び特定盛土等規制法(通称:盛土規制法)」が、令和5年5月26日から施行され、長野県では令和7年5月から盛土規制法に基づく規制が開始されました。』(長野県HPより)

ビバルデの丘は地山であり、全域が特定盛土規制区域に該当します。
造成を施していない分譲地なので、区画それぞれにおいて山の傾斜がみられます。
さて、このような傾斜地において別荘を建築するには、どのようにしたらよいのでしょうか。
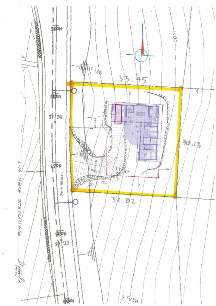
まずは敷地内において、測量士さんに依頼して高低測量をします。

体験宿泊棟が建つ予定の【K-14】号地の高低差は東西で約12mでした。
次に設計士先生に【K-14】号地を視察してもらい、敷地内のどの位置に建物を配置するか、道路からのアプローチをどの位置にするかをスケッチしてもらいます。

断面のスケッチ画を見ると、山の形状に添うような建物の造りとなっているのが解ります。


特定盛土規制法の対象区域なので、敷地内で2m超の切土を施すとなると県への届出が必要となり、5m超の切土となれば許可を得なければ造成工事ができません。
また、道路から建物までのスロープにおいて、車が登れる斜度であるかも調べなければなりません。
そこで、次に土木コンサルタントへ相談し、建物の位置・高さが特定盛土規制法に抵触しないか、実際にスロープが車で建物まで登っていける斜度かを確認してもらい、設計士先生が作成したスケッチを基に造成工事の図面を仕上げてもらいます。
数回にわたり設計士先生とコンサルご担当者様とのやり取りを重ねて、、、
造成工事の図面が仕上がりました。


こちらの図面を『特定盛土等に関する工事の造成図』として長野県に提出し、届出完了です。
また、ビバルデの丘では特定盛土規制法だけでなく、『建物は2階建てまで』『隣地境界から5M離す』などの自然保護協定の規制や自主規制があります。
市街地とは異なり、地山を基に区画割りした分譲地なので、土地購入者様に規制を守ってもらうことでご不便をおかけすることもあります。
また、設計に時間を費やしたり、費用が想定外に嵩んでしまったり、すんなり事が進まない事があります。
このような状況下ではありますが、せっかくの別荘建築の機会です。
別荘建築の道のりを楽しみながら進めたいものですね。







